Freiraumplanung

Freiraumplanung im halböffentlichen und öfentlichen Bereich verlangt andere Raumgestaltungen und Multifunktionalitäten.

Platzgestaltung 

Referenz: Platzgestaltung mit Spielanlage in Neukirchen-Vluyn

Technische Gestaltung

Referenz: Gestaltung des halböffentlichen Volle Kanne Gartens in Düsseldorf unter den Aspekten der Licht-Technik, Zugänglichkeit, Pflanzenauswahl und Funktionalität, Podest Matschbereich Spielplatz Neukirchen-Vluyn

Begrünungsplanung

Referenz: u. a. Wohnumfeldverbesserung Kaldenkirchen, Begrünung Straßenraum in Kaarst,

Begrünung Straßenraum im KITA-Bereich in Nettetal, Parkraumbegrünung Willich, Straßenbegleitgrün Geldern

Hangbegrünung

Referenz: Hangbegrünung unterhalb eines Waldbereiches am Mehrfamilienhauskomplex in Duisburg-Zoo

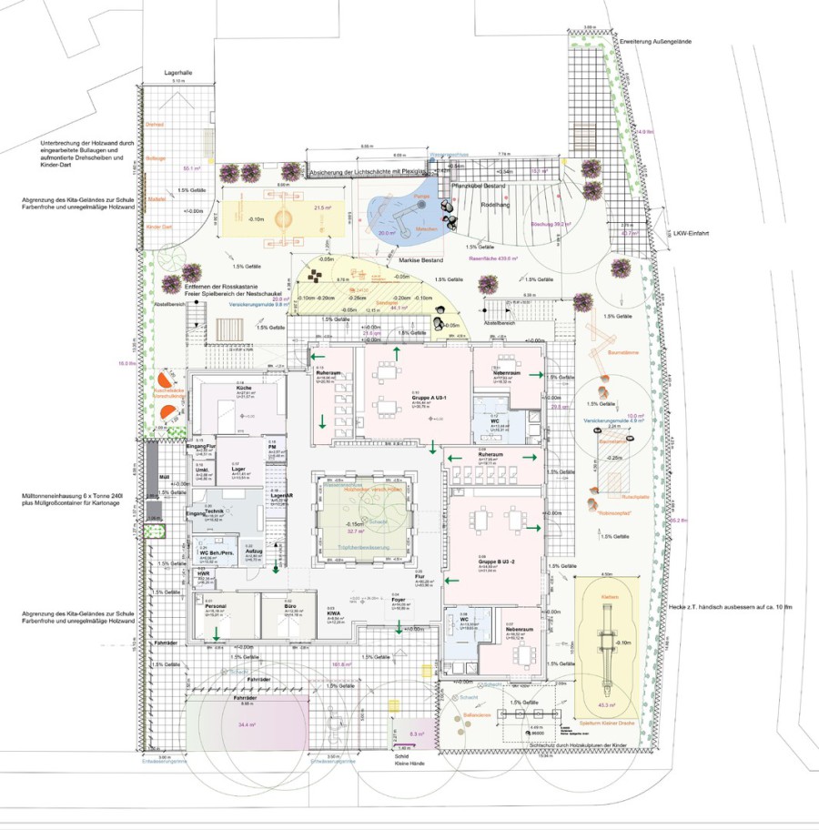
Außenanlagen KITA

Referenzen: Kindertagesstätte in Kempen, inklusive Kindertagesstätte in Oberhausen

Ausführungsplanung + Leistungsverzeichnis

Referenz: Platzgestaltung Neukirchen-Vluyn - Kuhstraße Tönisvorst - Quartierentwicklung TÖ-82, Tönisvorst

Bauleitung

Referenz: Grafschafter Platz, Neukirchen-Vluyn - Straßenbegleitbegrünung Geldern

Qualifizierter Freiflächengestaltungsplan (FGP)

 

Gerade in der heutigen Zeit ist der Bezug zur Nachhaltigkeit unerlässlich.

So sollte auch die Freiraumplanung mit allen ihren Möglichkeiten schon zu Beginn eines Projektes mit einbezogen werden. Daher ist es der Firma GARTENLANDSCHAFTEN ein großes Anliegen, im Verbund mit Investoren, Stadtplanern, Architekten und der Immobilienbranche auf Augenhöhe zusammen zu arbeiten.

Nachhaltigkeit kann dabei unter anderem in mutlifunktionalen Freiräumen, großzügigen intensiven Dachgärten, Grünzügen zur Klimasteuerung oder barrierefreien und integrativen Plätzen ihre langfristige Wirkung erhalten.

Dabei sind die Verwendung innovativer und nachhaltiger Materialien und Techniken, umfassende  Konzepterstellungen sowie die Einbeziehung von Artenschutzgutachten und anderen bestehenden Vorgaben und Festsetzungen und der Austausch aller Beteiligten sehr bedeutsam.

Langfristig unterstützen naturnahe und flexible Pflegekonzepte einen weiteren ökologischen Ansatz der Planung.

Pflegemanagement

 

Schon zu Beginn der Planungsphase ist es sinnvoll, sich Gedanken über die Kosten und die Weiterentwicklung eines Freiraumes zu machen. Die Firma GARTENLANDSCHAFTEN berät Sie dabei.

Durch die Einbeziehung des Themas "Pflege" haben Sie die Möglichkeit, den Freiraum langfristig in seiner Funktion zu unterstützen oder aber auch, ihn in eine neue Funktionaltät zu entwicklen.

Ausgeklügelte Pflegepläne mit Angaben zu Zeiteinheiten und durchzuführenden Pflegegängen in Kombination mit den auf Sie zukommenden Kosten werden in dazu entwickelten Exceltabellen für die ausführende Firma vorbereitet.

Eine begleitende Überwachung der Entwicklung des Freiraumes rundet die Pflege ab.

Somit ist Ihre Investition in einen individuellen, zukunftsorientierten und kostenmäßig rentablen Freiraum gesichert.

 

 

Vorteile einer Achtsamen Beratung

 

Persönliche Beratung während des gesamten Freiraumprojektes.

Die Arbeit der Freiraumplaner muss in dieser Zeit die Multifunktionalität auf den Punkt bringen.

Verschiedenste Aspekte der Gesellschaft und fachliche Weiterentwicklungen gilt es, zu einem überzeugenden Gesamtgefüge intensiv zu betrachten.

Daher ist es um so wichtiger geworden, Ideen, Visionen, Wünsche, Bedürfnisse und Erfahrungen aller am Entwicklungsprozess Beteiligten wahrzunehmen, konzentriert zu analysieren und in richtige Bahnen zu lenken.

Nutzen Sie die Kompetenz der "Achtsamen Beratung" der Firma Gartenlandschaften:

- Gespräche auf Augenhöhe

- Herausarbeiten der Wichtigkeiten, Prioritäten und Zusammenhänge

- Leitung interdisziplinärer Teams.

 

Druckversion | Sitemap
©service-gartendlandschaften.de, Firma GARTENLANDSCHAFTEN, Heike Diekmann-Ridder, Margarethe-Kramer-Straße 9, 47906 Kempen, 0160 92765572